Verzinkt stalen woning


FUTURISTISCHE VILLA
Verzinkt stalen villa
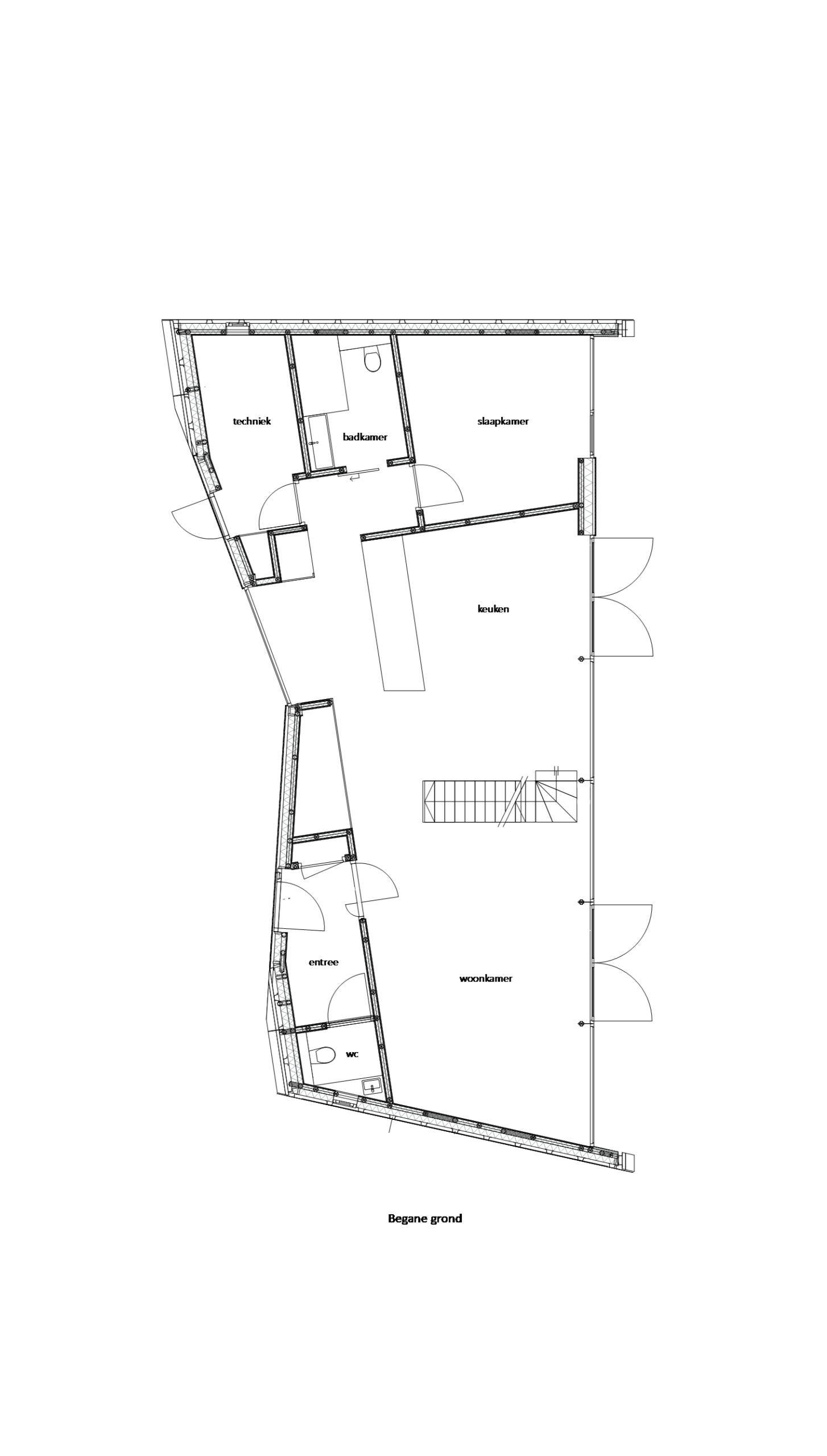
Niet altijd krijg je als architect de ontwerpvrijheid die we van deze opdrachtgevers kregen. Ze hadden een mooi kavel gekocht aan de rand van het ‘witte wijkje’ in Wouwse Plantage, Noord-Brabant. De opdrachtgevers wilden graag op de begane grond wonen, met logeerruimte op de verdieping voor hun 2 volwassen kinderen. Een weids uitzicht op de naastgelegen kwekerij stond voorop. De woning mocht ‘anders’ worden: qua vorm, materiaalgebruik en indeling. Vol enthousiasme zijn we verschillende ontwerpvarianten gaan maken, met dit stoere ontwerp als eindresultaat. Is het een futuristische villa of bungalow met optopping? Spectaculair is het.
Het volume staat gedraaid op het kavel, zodat een riante oprit en entree ontstaan. De toevoeging van hout bij de naar binnen geknikte gevels zorgt voor een warm, intiem accent. De voordeur is geheel onopvallend weggewerkt in de houten gevel; enkel het zijlicht verraadt het bestaan van de deur.
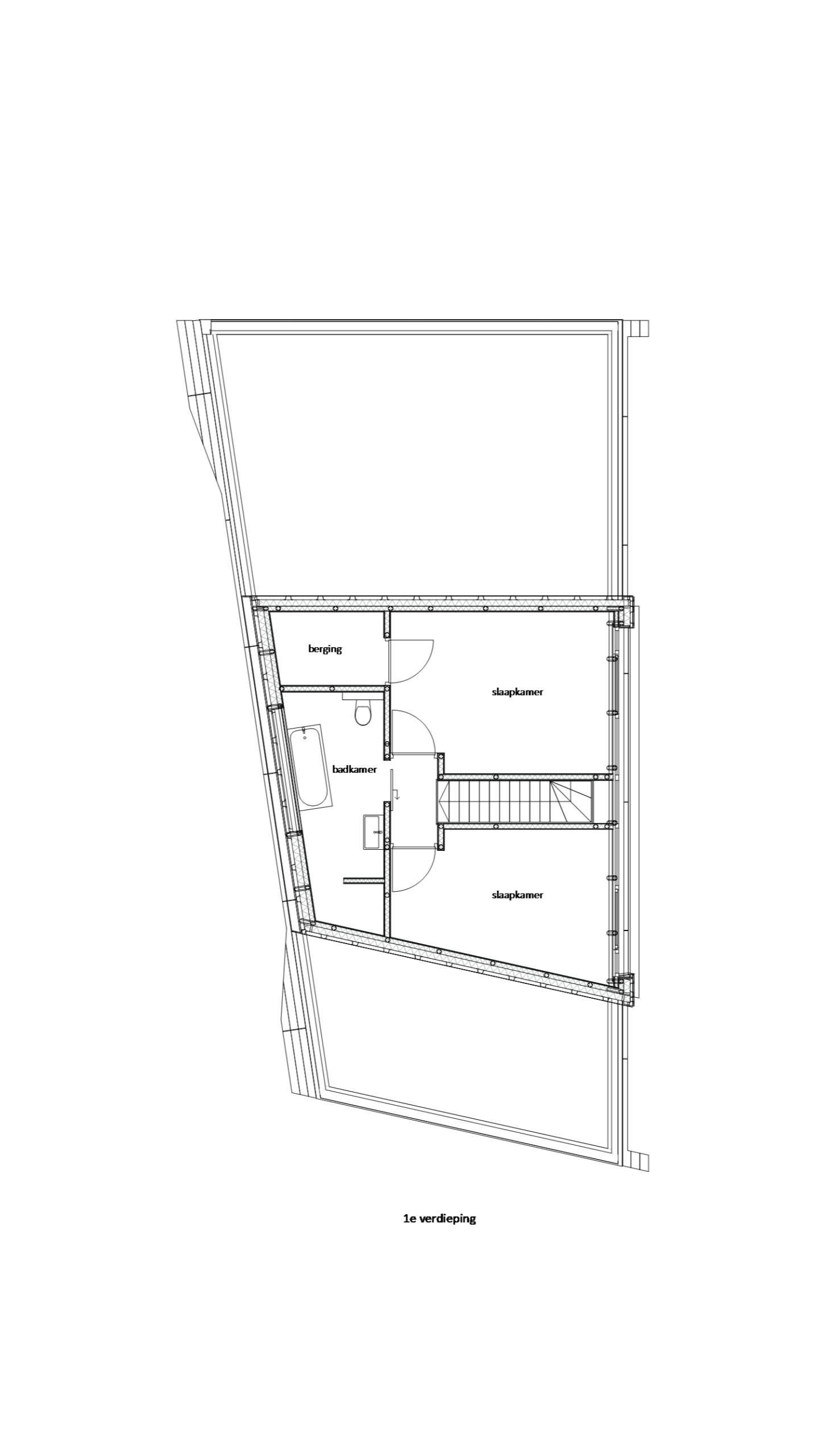
Bij binnenkomst ontvouwt zich een hele andere wereld: als in een aquarium wordt men ondergedompeld in het uitzicht op een bomenkwekerij. Doorlopend de tuin in, ontdekken we de buitengevel aan de kwekerijkant met optopping als een soort turret van een tank, dat eveneens een panoramisch uitzicht biedt. Een simpel idee dat tot in strak detail is uitgedacht.











