Stalen woning Nuth

KEUZE TOOL

Bekijk de woningtypes of vraag direct een kostenindicatie aan.

ZIGZAG

Stalen zigzag woning Nuth

zo kan deze woning in het Limburgse Nuth het best omschreven worden. Een eigenzinnige woning en uitdagend project om aan te mogen werken. Beide zijgevels zijn bekleed met een horizontaal stalen puntprofielen, zodat een ‘getande’ zijgevel ontstaat; voor- en achterzijde een geperforeerde plaat. Door de opengewerkte tweede huid ontstaat een mooie gelaagdheid in de gevel. De perforaties zijn letterlijk tot op de millimeter uitgedacht en volledig door onze architecten zelf uitgetekend, vervolgens besteld en door de aannemer gemonteerd. De gevels zijn alle uitgevoerd in zwartgrijs. De witte aluminium kozijnen contrasteren hiermee en zijn voorzien van een uitstekend kader, wat de raamopeningen mooi accentueert.

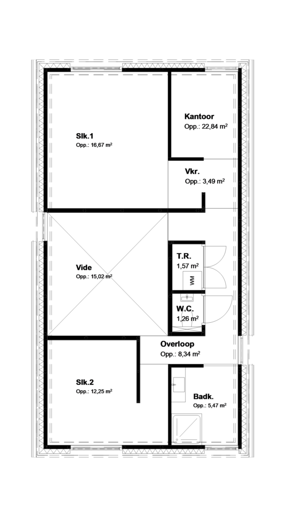
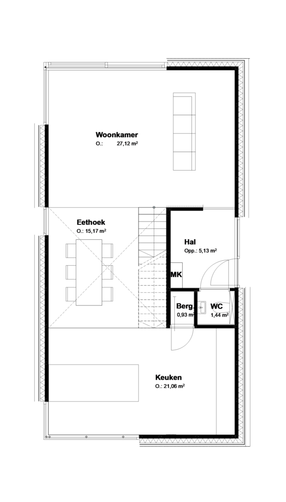
De begane grond van de woning heeft een heel open plattegrond, waarbij de woonkamer en keuken aan elkaar verbonden zijn met de ruimte voor de eettafel. Een vide met een smal, hoog raam en meerdere doorkijkjes op de verdieping, versterken dit ruimtelijke effect. De binnenwanden zijn wit gestuct, met witte kozijnen en een moderne gevouwen stalen trap in de vide, zorgt dit voor een mooie, frisse uitstraling. De vloer op de begane grondvloer is uitgevoerd als gevlinderde betonvloer, helemaal passend bij het stoere karakter van het huis.
Een echte eye-catcher en leuk project om aan te werken!

Bouwen met staal 10/23 wijdde een artikel ‘Zigzag en wybertjes‘ aan deze woning, door P.F. Deelen in de rubriek Wonen met staal (96).
Videoom Beekdealen maakte een video van deze woning.

Zwarte stalen woning creatief ontwerp Architect
Stalen woning in Nuth met design gevel door architect
Interieur moderne woning architect Studio Bruce

Alle Projecten

Moderne minimalistische woning zwart stalen geperforeerde en zigzag gevel

Stalen woning Nuth

Blokvilla

Schuurwoning bouwen
Ontwerp schuurwoning

Schuurwoning Emmeloord

schuurwoning

Moderne woning

verzinkt stalen woning

Moderne vrijstaande compacte woning met wit stucwerk buitengevel

Wit gestucte woning

Gestucte woning Almere

schuurwoning

Schuurwoning Almere

Moderne zwarte schuurwoning houten kopgevel en felsplaten dak

schuurwoning

Schuurwoning Enschede

Op zoek naar een architect?

Scroll naar boven